$139,500
- Off Market
- MLS#: 20436366
- 916 Days
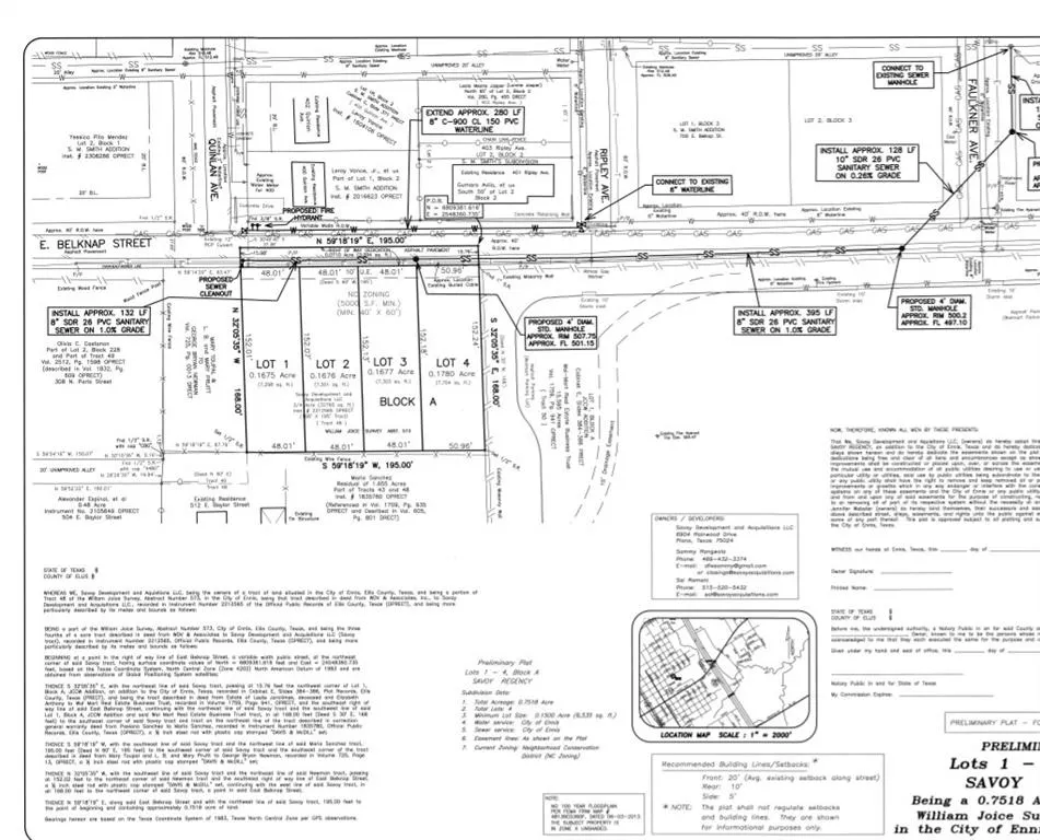
TBD E Belknap St, Ennis, TX 75119

- Listing Brokerage: United Real Estate
- Listing Agent: Shams Rangwala
- HD Images (2)
- Map View
TBD E Belknap St, Ennis, TX 75119–MLS#: 20436366
Save Property For Users
- Images (2)
- Map

- 186177
- 0.75 Acres
- 186,000 Acres
- Residential
